облачность, ветер: 2 м/c, Ю, давление: 2 мм рт.ст., влажность: 33% -20°
Сделать стартовой

Продам 2-комнатную квартиру

Объявление № 5175176    
Квартира

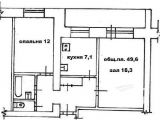
Количество комнат  2
Общая площадь  49.6 кв.м
жилая  30.3 кв.м
кухня  7.1 кв.м
Этаж/этажность  4/9
Отделка  требуется ремонт
Санузел  раздельный
Балкон/лоджия  лоджия
в здании

Енисейская 8  (6)  Показать на панораме
Советский район
Этажность  9
Материал  кирпич
Год постройки  1987
Вид  вторичное
Описание

В продаже 2к в Советском районе, ул. Енисейская 8. Кирпичный дом. Квартира расположена на 4м этаже. Общ.пл. 49, 6 м2 Это без учета застекленной лоджии.
Главные преимущества этой квартиры — абсолютная чистота и отсутствие каких-либо посторонних запахов.
А также удачная локация.

Состояние квартиры — классический советский ремонт. Это идеальный вариант для тех, кто не хочет переплачивать за чужие сомнительные обои и мечтает реализовать собственный дизайн-проект.
• Квартира очень ухоженная, в ней жила аккуратная семья.
• Все коммуникации в рабочем состоянии.
• Чистый подъезд.

Квартира требует вложений в отделку, что уже отражено в привлекательной цене. Вы получаете «чистый лист» в хорошем доме. Квартира освобождена. Звоните, организую оперативный показ!
Карта     Показать панораму

Уменьшить
Увеличить
Условия

5 500 000 руб.
  (110 890 руб. за м2). Ипотека. Материнский капитал.

Контактная информация

Контактное лицо: Анастасия Олеговна

Телефон:

Агентство недвижимости "Лагуна"

Объявление № 5175176     Статистика

Опубликовал: an_laguna
Опубликовано: 08 января 2026
Истекает: 22 февраля 2026
Статус: Опубликовано Опубликовано
Поделиться

Похожие варианты (16) На карте

2-комнатную
квартиру
Кирова проспект 54  (1)  Показать на панораме
Кировский район
кирпич
Год постройки:1964
5 этаж
5 всего
45 м25445 т.р.
121 за м2
Поднять объявление Авторизуйтесь, чтобы добавить в избранное Авторизуйтесь, чтобы оставить заметку Авторизуйтесь, чтобы отправить объявление по почте Поделиться ссылкой
05 января 2026.     КОНТАКТ:     ТЕЛ: .     Агентство недвижимости Губерния
2-комнатную
квартиру
Фрунзе проспект 124  (1)  Показать на панораме
Советский район
Год постройки:1973
5 этаж
5 всего
45.2 м2
31.2 м2 жилая
5.1 м2 кухня
5550 т.р.
122.79 за м2
Поднять объявление Авторизуйтесь, чтобы добавить в избранное Авторизуйтесь, чтобы оставить заметку Авторизуйтесь, чтобы отправить объявление по почте Поделиться ссылкой
22 декабря 2025.     КОНТАКТ: Яровой Александр Александрович     ТЕЛ: .     Компания ЭТАЖИ
2-комнатную
квартиру
Усова 23  (2)  Показать на панораме
Кировский район
кирпич
Год постройки:1962
5 этаж
5 всего
44.2 м2
6 м2 кухня
5500 т.р.
124.43 за м2
Поднять объявление Авторизуйтесь, чтобы добавить в избранное Авторизуйтесь, чтобы оставить заметку Авторизуйтесь, чтобы отправить объявление по почте Поделиться ссылкой
08 декабря 2025.     КОНТАКТ: Данил     ТЕЛ: .     Арус
2-комнатную
квартиру
Усова 44  (1)  Показать на панораме
Кировский район
кирпич
Год постройки:1969
4 этаж
5 всего
45.3 м2
6 м2 кухня
5599 т.р.
123.6 за м2
Поднять объявление Авторизуйтесь, чтобы добавить в избранное Авторизуйтесь, чтобы оставить заметку Авторизуйтесь, чтобы отправить объявление по почте Поделиться ссылкой
19 декабря 2025.     КОНТАКТ: Наталья     ТЕЛ: .     Агентство недвижимости Аврора
2-комнатную
квартиру
Гоголя 29  (1)  Показать на панораме
Советский район
кирпич
Год постройки:1970
4 этаж
5 всего
45.4 м25500 т.р.
121.15 за м2
Поднять объявление Авторизуйтесь, чтобы добавить в избранное Авторизуйтесь, чтобы оставить заметку Авторизуйтесь, чтобы отправить объявление по почте Поделиться ссылкой
05 января 2026.     КОНТАКТ: Яна     ТЕЛ: .     Город
Добавить объявление
Недвижимоcть на карте
Поиск по критериям

ПРОДАЮ

ОБМЕН

СДАЮ

СПЕЦИАЛЬНЫЕ ПРЕДЛОЖЕНИЯ

Агентства недвижимости 

Самолет плюс - центр Томск


Алатарцев.Недвижимость


Грасиона


Компания ЭТАЖИ


ТДСК Инвест


Агама


Жилфонд