|
|
реклама
Рекламодатель: ООО "УК "КонтинентЪ", ИНН 7017208000 ИД креатива: LdtCKW5Ps

| |
|
Продам 3-этажный кирпичный дом
|
 |
|
|
|
Объявление № 5172194
|
|
|
| Есть центральные коммуникации: Электричество, Газ, Водоснабжение, Отопление. |
| Описание |
|
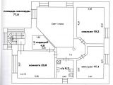
| В продаже трехэтажный кирпичный дом в живописном с. Тимирязевское. Общ.пл. 247, 6 м2 Первый этаж: просторная гостиная с камином, уютная столовая, санузел, спальня и котельная. Второй этаж: две спальни и дополнительный санузел, так же есть дополнительная комната для отдыха, гардеробная. Третий этаж: ваша личная зона для отдыха и работы – спальня, санузел и просторный кабинет. Участок 26 соток предлагает: Беседка и баня (38, 4м2): идеальное место для встреч с друзьями и релаксации. Ландшафтный дизайн: декоративные кустарники, цветы и величественные сосны создают неповторимую атмосферу. Продуманное зонирование: хозяйственная часть участка полностью отделена от жилой, обеспечивая приватность и эстетичный вид. Гараж – 22, 6м2 (ширина ворот - 2, 5 м, высота - 2, 1м, высота гаража – 2, 6м) Коммуникации: центральное водоснабжение, газ, электричество. Слив автономный. При продаже остается мебель и техника, по договоренности. Для получения дополнительной информации и организации просмотра, пожалуйста, свяжитесь с нами. |
| Условия |
|
|
3 600 000 руб.
|
(14 540 руб. за м2).
|
|

|

|
Объявление № 5172194
Статистика
|
|
| Опубликовал: |
an_laguna |
| Опубликовано: |
10 декабря 2025 |
| Истекает: |
24 января 2026 |
| Статус: |
Опубликовано
|
|
|
 |
|
|
 |
|
|
|
|
|
дом 1 этаж 2 комнаты | Тимакова 25 Кировский район кирпич | 87.8 м2 40 м2 жилая 3.61 сот | 3600 т.р. 41 за м2 |
|
|
|
15 сентября 2025.
КОНТАКТ: Павел Иванович
ТЕЛ:
.
|
 |
|
|
|
дом 1 этаж 2 комнаты | Большая Подгорная 148 Ленинский район дерево | 40 м2 3.7 сот | 3500 т.р. 87.5 за м2 |
|
|
|
03 декабря 2025.
КОНТАКТ: Наталья
ТЕЛ:
.
Атриум
|
 |
|
|
|
1/2 дома 2 этажа 4 комнаты | Войлочная Октябрьский район дерево | 86 м2 70 м2 жилая 3 сот | 3490 т.р. 40.58 за м2 |
|
|
|
05 декабря 2025.
КОНТАКТ: Вейс Светлана
ТЕЛ:
.
Города, агентство недвижимости
|
 |
|
|
|
1/2 дома 2 этажа 3 комнаты | Чулымская Октябрьский район дерево | 49 м2 2 сот | 3500 т.р. 71.430 за м2 |
|
|
|
24 сентября 2025.
КОНТАКТ: Мария Алексеевна
ТЕЛ:
.
|
 |
|
|
|
1/2 дома 1 этаж 2 комнаты | Дорожный переулок 38 Октябрьский район дерево | 40 м2 3 сот | 3550 т.р. 88.75 за м2 |
|
|
|
24 ноября 2025.
КОНТАКТ:
ТЕЛ:
.
Лига
|
 |
|
Недвижимоcть на карте
 |
 |
Поиск по критериям |
+1 |
 |
9222 |
 |
|
|
|
 |
реклама

|
|
|
 |
|
Предложений:296
|
|
|
Предложений:774
|
|
|
Предложений:18
|
|
|
Предложений:997
|
|
|
Предложений:56
|
|
|
Предложений:32
|
|
|
Предложений:290
|
| |
|
|
|
|
 |
|
 |
|