облачность, ветер: 2 м/c, СЗ, давление: 2 мм рт.ст., влажность: 33% -21°
Сделать стартовой

Продам 1-комнатную квартиру

Объявление № 5169742    
Квартира

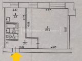
Количество комнат  1
Общая площадь  45.7 кв.м
жилая  20 кв.м
кухня  5 кв.м
Этаж/этажность  5/10
Отделка  в отличном состоянии
Санузел  раздельный
в здании

Смирнова 36  (1)  Показать на панораме
Ленинский район
Этажность  10
Материал  кирпич
Год постройки  1977
Вид  вторичное
Описание

Продаётся уютная однокомнатная квартира.Площадь квартиры составляет 45.70 кв.м., что позволяет создать пространство для комфортной жизни. Мебель остается в квартире, что сэкономит время и ресурсы на её покупку. Это отличное сочетание цены и качества, что делает данное предложение особенно привлекательным. Изначально была 2 комнатная квартира, произведена перепланировка в 1 комнатную(узаконено).Рядом с домом развитая инрастуктура. Дополнительные вопросты по телефону.
Карта     Показать панораму

Уменьшить
Увеличить
Условия

4 700 000 руб.
  (102 840 руб. за м2).

Контактная информация

Контактное лицо: Владимир

Телефон:

Алатарцев.Недвижимость, агентство недвижимости

Объявление № 5169742     Статистика

Опубликовал: Rimma2000
Опубликовано: 02 декабря 2025
Истекает: 16 января 2026
Статус: Опубликовано Опубликовано
Поделиться

Похожие варианты (19) На карте

1-комнатную
квартиру
Ленская 49  (1)  Показать на панораме
Ленинский район
кирпич
Год постройки:2008
10 этаж
10 всего
34.1 м2
9.7 м2 кухня
4650 т.р.
136.360 за м2
Поднять объявление Авторизуйтесь, чтобы добавить в избранное Авторизуйтесь, чтобы оставить заметку Авторизуйтесь, чтобы отправить объявление по почте Поделиться ссылкой
04 декабря 2025.     КОНТАКТ: Вячеслав     ТЕЛ: .     Наше, агентство недвижимости
1-комнатную
квартиру
Ленская 53  (2)  Показать на панораме
Ленинский район
панель
Год постройки:2007
7 этаж
10 всего
39.3 м2
20 м2 жилая
8 м2 кухня
4600 т.р.
117.05 за м2
Поднять объявление Авторизуйтесь, чтобы добавить в избранное Авторизуйтесь, чтобы оставить заметку Авторизуйтесь, чтобы отправить объявление по почте Поделиться ссылкой
27 ноября 2025.     КОНТАКТ: Ольга     ТЕЛ: .     Атриум
1-комнатную
квартиру
Говорова 33  (7)
Ленинский район
панель
Год постройки:2013
1 этаж
17 всего
34.9 м2
18 м2 жилая
7.2 м2 кухня
4750 т.р.
136.1 за м2
Поднять объявление Авторизуйтесь, чтобы добавить в избранное Авторизуйтесь, чтобы оставить заметку Авторизуйтесь, чтобы отправить объявление по почте Поделиться ссылкой
25 ноября 2025.     КОНТАКТ: Ольга     ТЕЛ: .    
1-комнатную
квартиру
Говорова 33  (7)
Ленинский район
панель
Год постройки:2013
1 этаж
17 всего
34.9 м2
18 м2 жилая
7.2 м2 кухня
4750 т.р.
136.1 за м2
Поднять объявление Авторизуйтесь, чтобы добавить в избранное Авторизуйтесь, чтобы оставить заметку Авторизуйтесь, чтобы отправить объявление по почте Поделиться ссылкой
25 ноября 2025.     КОНТАКТ: Ирина Владимировна ;Галина Павловна     ТЕЛ: .     Агентство недвижимости Аврора
1-комнатную
квартиру
Ленская 31  (11)  Показать на панораме
Ленинский район
монолит
Год постройки:2012
15 этаж
16 всего
40.7 м2
16.4 м2 жилая
13 м2 кухня
4799 т.р.
117.91 за м2
Поднять объявление Авторизуйтесь, чтобы добавить в избранное Авторизуйтесь, чтобы оставить заметку Авторизуйтесь, чтобы отправить объявление по почте Поделиться ссылкой
03 декабря 2025.     КОНТАКТ: Анна     ТЕЛ: .     Алатарцев.Недвижимость
Добавить объявление
Недвижимоcть на карте
Поиск по критериям +182 9172

ПРОДАЮ

ОБМЕН

СДАЮ

СПЕЦИАЛЬНЫЕ ПРЕДЛОЖЕНИЯ (49)

Агентства недвижимости 

Самолет плюс - центр Томск

Предложений:271

Алатарцев.Недвижимость

Предложений:780

Грасиона

Предложений:17

Компания ЭТАЖИ

Предложений:953

ТДСК Инвест

Предложений:51

Агама

Предложений:32

Жилфонд

Предложений:275