|
|
реклама
Рекламодатель: ООО "УК "КонтинентЪ", ИНН 7017208000 ИД креатива: LdtCKW5Ps

| |
|
Продам 2-этажный кирпичный коттедж
|
 |
|
|
|
Объявление № 5154342
|
|
|
|
|
| Заповедный, микрорайон (село Коларово) | | Томский район |
| Отделка |
черновая отделка |
| Общая площадь |
120.89 кв.м |
| жилая |
95.86 кв.м |
| Площадь участка |
7 сот |
| Этажность |
2 |
| Материал |
кирпич |
| Вид |
новостройка |
| Тип дома |
коттедж |
|
 |
| Есть пластиковые окна. |
| Есть центральные коммуникации: электричество, газ, водоснабжение, канализация, отопление. |
| Описание |
|
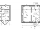
Продаются индивидуальные 3-х комнатные 2-х этажные жилые дома в живописном месте мкр. «Славянка». Находится в 18 километрах от пл. Южной, трасса Томск – с. Яр. Рядом находится с Коларово, Синий утес - излюбленное место отдыха Томичей. У подножья горнолыжного парка «Эдельвейс». Общая площадь здания = 120, 89 м2, в т.ч. площадь дома = 95, 86 м2 (площадь 1-го этажа = 53, 96 м2; площадь 2-го этажа = 41, 9 м2); площадь балкона = 4, 13 м2; площадь гаража – 20, 9 м2. 1 этаж: тамбур, прихожая, подсобное помещение, туалет, кухня-столовая, лестница. 2 этаж: три спальные комнаты, санузел. Лестница (металлическая или монолитная). Фундамент – монолитная железобетонная плита из бетона с армированием, толщиной 400 мм и устройством гидроизоляции. Под плитой подготовка из ПГС толщиной 300 мм и подготовка из песка толщиной 100 мм. Наружные стены дома – многослойные из рядового пустотелого камня и рядового кирпича, толщиной 380 мм. Наружное утепление из пенополистирола, толщиной 100 мм и облицовочного слоя из кирпича, толщиной 85 мм. Наружные стены гаража - из рядового пустотелого камня и облицовочного слоя из кирпича, толщиной 85 мм. Общая толщина стены 345 мм. Внутренние стены дома – выполнены из рядового пустотелого камня и рядового кирпича, толщиной 380 мм. Перегородки – из полнотелого кирпича 120 мм. Перекрытие над 1-м этажом – сборные железобетонные многопустотные плиты. Крыша – двухскатная мансардная с вентилируемым зазором, устройством мембраны и утеплителем, толщиной 250 мм. Стропильная часть – деревянная конструкция из элементов хвойных пород. Покрытие из металлочерепицы. Окна – пластиковые переплеты с двухкамерным стеклопакетом и ТОП-стеклом. Двери – металлопластиковые утепленные с повышенной тепло-звукоизоляцией. Отмостка – из щебня, с подготовкой из ПГС, шириной 1 м с уклоном от здания. Водоснабжение: индивидуальная скважина. Канализация: септик. Отопление: газ с заведением в дом. Наружные сети электроснабжения: счетчик на уличном столбе. Звоните ! |
| Условия |
|
|
14 300 000 руб.
|
(118 290 руб. за м2). Ипотека. Материнский капитал. Документы готовы.
|
|

|

|
Объявление № 5154342
Статистика
|
|
| Опубликовал: |
Jilfond2022 |
| Опубликовано: |
11 ноября 2025 |
| Истекает: |
26 декабря 2025 |
| Статус: |
Опубликовано
|
|
|
|
Недвижимоcть на карте
 |
 |
Поиск по критериям |
+184 |
 |
9169 |
 |
|
|
|
 |
реклама

|
|
|
 |
|
Предложений:271
|
|
|
Предложений:780
|
|
|
Предложений:17
|
|
|
Предложений:953
|
|
|
Предложений:51
|
|
|
Предложений:32
|
|
|
Предложений:275
|
| |
|
|
|
|
 |
|
 |
|